- MID TERRACED PROPERTY
- TWO DOUBLE BEDROOMS
- SPACIOUS LIVING ACCOMMODATION
- MODERN KITCHEN
- LOUNGE DINING ROOM
- LARGE BATHROOM
- DOUBLE GLAZING + GAS CENTRAL HEATING
- ENCLOSED REAR COURTYARD GARDEN
- POPULAR RESIDENTIAL AREA
Full Description
NEW PRICE!!! A modern and well presented two bedroom mid terraced property providing spacious living accommodation set in this popular residential area. The property benefits from two double bedroom, modern kitchen, gas central heating, double glazing and a rear enclosed patio garden. Briefly comprises: Entrance door leading into: Open plan lounge dining room, modern kitchen. To the first floor: Two double bedrooms and large spacious bathroom. Externally: Small planted garden area to the front of the property and a rear enclosed courtyard garden with a rear access gate. THIS PROPERTY WILL SUIT A WIDE RANGE OF BUYERS.
FRONT DOOR
Double glazed front door leading into open plan:
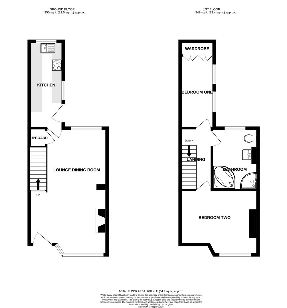
LOUNGE DINING ROOM (6.53m x 4.01m (21'5" x 13'2"))
Feature bay window to front aspect with further double glazed window to rear, feature fire place housing gas fire, radiator and double radiator. laminate wood flooring, stairs leading to first floor, under stairs storage cupboard.
KITCHEN (4.47m x 1.78m (14'8" x 5'10"))
Modern wall and base units with work top over, sink unit housing stainless steel sink and drainer with swivel mixer tap, four ring electric hob and oven with extractor hood, space and plumbing for washing machine and dishwasher, space for upright fridge freezer, two double glazed windows and double glazed door to rear aspect.
FIRST FLOOR
Loft access.
BEDROOM ONE (3.81m x 3.71m (12'6" x 12'2"))
Two double glazed windows to rear aspect, range of fitted wardrobes, double radiator.
BEDROOM TWO (4.62m x 3.33m (15'2" x 10'11"))
Double glazed window to front aspect, radiator.
BATHROOM (3.94m x 2.39m (12'11" x 7'10"))
White suite comprising: Panelled bath and taps, low level W.C., pedestal hand wash basin and taps, shower cubicle with electric shower, chrome wall mounted towel rail. double glazed window to rear aspect.
EXTERNALLY
FRONT GARDEN
Small planted garden area to the front of the property.
ENCLOSED REAR COURTYARD
Enclosed rear courtyard garden with brick built BBQ, fenced perimeter and gated access to rear.
AGENTS NOTES
On Street Parking.
Council Tax Band B
Viewing
Please contact us on 01765 604343 if you wish to arrange a viewing appointment for this property, or require further information.
Disclaimer
Sherringtons Estate Agents endeavour to maintain accurate depictions of properties in Virtual Tours, Floor Plans and descriptions, however, these are intended only as a guide and purchasers must satisfy themselves by personal inspection.
FRONT DOOR
Double glazed front door leading into open plan:
LOUNGE DINING ROOM (6.53m x 4.01m (21'5" x 13'2"))
Feature bay window to front aspect with further double glazed window to rear, feature fire place housing gas fire, radiator and double radiator. laminate wood flooring, stairs leading to first floor, under stairs storage cupboard.
KITCHEN (4.47m x 1.78m (14'8" x 5'10"))
Modern wall and base units with work top over, sink unit housing stainless steel sink and drainer with swivel mixer tap, four ring electric hob and oven with extractor hood, space and plumbing for washing machine and dishwasher, space for upright fridge freezer, two double glazed windows and double glazed door to rear aspect.
FIRST FLOOR
Loft access.
BEDROOM ONE (3.81m x 3.71m (12'6" x 12'2"))
Two double glazed windows to rear aspect, range of fitted wardrobes, double radiator.
BEDROOM TWO (4.62m x 3.33m (15'2" x 10'11"))
Double glazed window to front aspect, radiator.
BATHROOM (3.94m x 2.39m (12'11" x 7'10"))
White suite comprising: Panelled bath and taps, low level W.C., pedestal hand wash basin and taps, shower cubicle with electric shower, chrome wall mounted towel rail. double glazed window to rear aspect.
EXTERNALLY
FRONT GARDEN
Small planted garden area to the front of the property.
ENCLOSED REAR COURTYARD
Enclosed rear courtyard garden with brick built BBQ, fenced perimeter and gated access to rear.
AGENTS NOTES
On Street Parking.
Council Tax Band B
Viewing
Please contact us on 01765 604343 if you wish to arrange a viewing appointment for this property, or require further information.
Disclaimer
Sherringtons Estate Agents endeavour to maintain accurate depictions of properties in Virtual Tours, Floor Plans and descriptions, however, these are intended only as a guide and purchasers must satisfy themselves by personal inspection.
