- FIRST FLOOR SPACIOUS APARTMENT
- TWO DOUBLE BEDROOMS
- SUPERB LOCATION
- STUNNING VIEWS OVER VALLEY GARDENS
- GAS CENTRAL HEATING
- CLOSE PROXIMITY TO HARROGATE CENTRE
- CLOSE TO LOCAL AMENITIES
- UNRESTRICTED ON STREET PARKING
Full Description
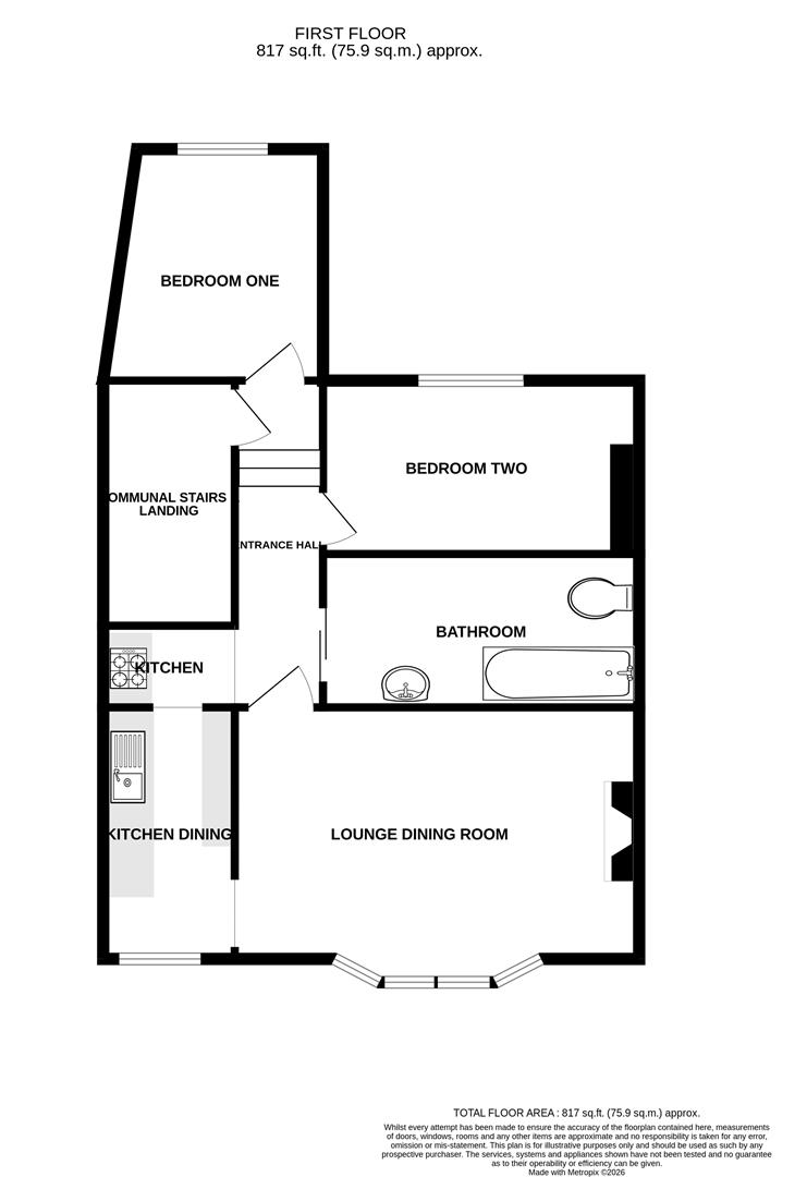
A first floor two double bedroom apartment set in a superb location on Harlow Moor Drive with views over Valley Gardens. The property benefits from being spacious throughout, stunning views, and in close proximity to Harrogate town centre and all its amenities. Briefly comprises: Communal entrance with stairs leading to first floor; front door, entrance hall, lounge dining room, kitchen dining, two double bedrooms and bathroom. Must be viewed to appreciate the spacious accommodation on offer.
COMMUNAL ENTRANCE
Staircase giving access to the first floor.
FRONT DOOR
Leading into:
ENTRANCE HALL
Security entry phone, radiator.
LOUNGE DINING ROOM (5.92m x 3.68m)
Feature walk in bay window to front aspect overlooking Valley Gardens, feature fire place housing gas fire, radiator.
KITCHEN DINING (4.88m x 1.93m (16'0" x 6'4"))
A range of wall and base units with work surface over, 4 ring gas hob and oven with extractor over, sink unit housing bowl and drainer with mixer tap, space and plumbing for washing machine, space for upright fridge freezer, breakfast bar, radiator, window to front aspect.
BEDROOM ONE (3.38m x 2.69m)
Window to rear aspect, radiator.
BEDROOM TWO (4.62m x 2.26m)
Windows to rear and side aspect, radiator, wall mounted boiler.
BATHROOM (1.47m x 2.34m (4'10" x 7'8"))
White suite comprising, panelled bath with over head electric shower, low level W.C., pedestal hand wash basin and taps, extractor fan, radiator.
EXTERNALLY
Unrestricted on street parking.
AGENTS NOTES
Lease details; 125 year lease from 25th March 2000.
Service charge is a third of costs in relation to the building.
Ground rent is £50 per annum.
Viewing
Please contact us on 01765 604343 if you wish to arrange a viewing appointment for this property, or require further information.
Energy Performance Certificate
Click here to view the Energy Efficiency Rating and Environmental Impact Rating for this property.
Disclaimer
Sherringtons Estate Agents endeavour to maintain accurate depictions of properties in Virtual Tours, Floor Plans and descriptions, however, these are intended only as a guide and purchasers must satisfy themselves by personal inspection.
COMMUNAL ENTRANCE
Staircase giving access to the first floor.
FRONT DOOR
Leading into:
ENTRANCE HALL
Security entry phone, radiator.
LOUNGE DINING ROOM (5.92m x 3.68m)
Feature walk in bay window to front aspect overlooking Valley Gardens, feature fire place housing gas fire, radiator.
KITCHEN DINING (4.88m x 1.93m (16'0" x 6'4"))
A range of wall and base units with work surface over, 4 ring gas hob and oven with extractor over, sink unit housing bowl and drainer with mixer tap, space and plumbing for washing machine, space for upright fridge freezer, breakfast bar, radiator, window to front aspect.
BEDROOM ONE (3.38m x 2.69m)
Window to rear aspect, radiator.
BEDROOM TWO (4.62m x 2.26m)
Windows to rear and side aspect, radiator, wall mounted boiler.
BATHROOM (1.47m x 2.34m (4'10" x 7'8"))
White suite comprising, panelled bath with over head electric shower, low level W.C., pedestal hand wash basin and taps, extractor fan, radiator.
EXTERNALLY
Unrestricted on street parking.
AGENTS NOTES
Lease details; 125 year lease from 25th March 2000.
Service charge is a third of costs in relation to the building.
Ground rent is £50 per annum.
Viewing
Please contact us on 01765 604343 if you wish to arrange a viewing appointment for this property, or require further information.
Energy Performance Certificate
Click here to view the Energy Efficiency Rating and Environmental Impact Rating for this property.
Disclaimer
Sherringtons Estate Agents endeavour to maintain accurate depictions of properties in Virtual Tours, Floor Plans and descriptions, however, these are intended only as a guide and purchasers must satisfy themselves by personal inspection.
