- DETACHED 12FT X 36FT OMAR PARK HOME
- ON NIDDERDALE LODGE PARK
- ONE DOUBLE BEDROOM
- STYLISH + MODERN OPEN PLAN LOUNGE + KITCHEN DINING ROOM
- ELEVATED RAISED DECKING + PATIO GARDEN
- SECLUDED TRANQUIL POSITION
- DESIGNATED OFF STREET PARKING
- ONLY 5 YEARS OLD
- CHAIN FREE!!!
Full Description
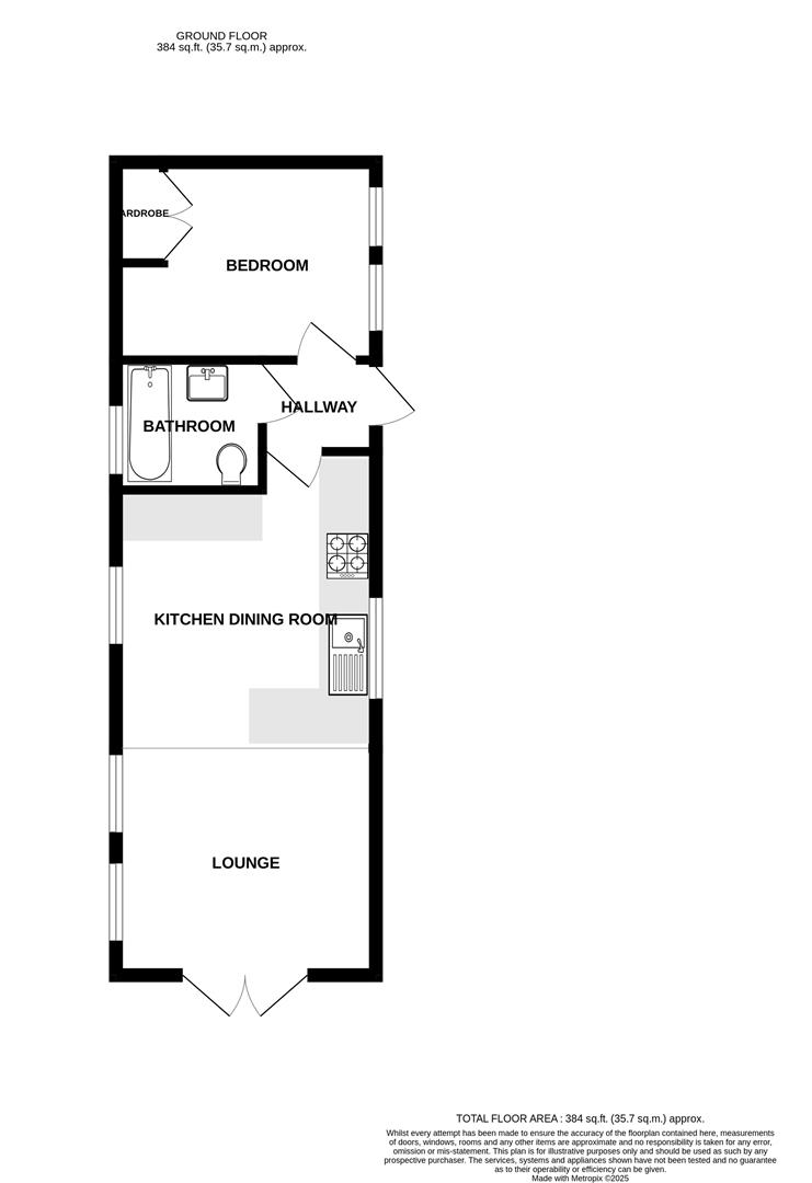
Only five years old this stylish one bedroom 12ft x 36ft Omar park home occupies a secluded position and is situated on the delightful and tranquil OVER 50'S site of Nidderdale Lodge Park within easy reach of Knaresborough High Street. The property benefits from being spacious, light, modern and open plan, gas central heating, double glazing, enclosed patio garden, off street parking and a elevated wrap around decked area. The accommodation is modern, light, spacious and well laid out and briefly comprises; Front door leading into: Open plan lounge kitchen dining room, double bedroom and built in wardrobes, modern shower room. Externally; Low maintenance enclosed paved seating area and a large raised decked area, designated off street parking space. Chain Free!!!
LOUNGE (3.38m x 2.95m (11'1" x 9'8"))
Double glazed patio doors to raised decked area, double glazed window x two to side aspect, vaulted ceiling, wall mounted electric fire, tv point, double radiator, ceiling coving. Open plan to:
KITCHEN DINING ROOM (3.86m x 3.38m (12'8" x 11'1"))
Range modern wall and base units with work top over, integrated electric oven and four ring gas hob with extractor hood over, sink unit housing stainless steel bowl and drainer with swivel mixer tap, integrated fridge freezer and washing machine, radiator, ceiling coving, vaulted ceiling, inset ceiling spot lights, velux windows x two, double glazed windows x two to side aspect.
HALLWAY
Radiator, ceiling coving.
DOUBLE BEDROOM (2.57m x 3.38m (8'5" x 11'1"))
Double glazed windows x two to side aspect, built in wardrobes, ceiling coving.
BATHROOM (1.68m x 1.91m (5'6" x 6'3"))
Modern white suite comprising: Panelled bath with over head mains shower, vanity unit housing basin and mixer tap, low level W.C., chrome wall mounted towel rail, extractor fan, ceiling coving, double glazed window to side aspect.
EXTERNALLY
DESIGNATED PARKING
Designated parking space.
RAISED DECKING
Elevated wrap around decking to front and side aspects.
ENCLOSED GARDEN
Low maintenance enclosed block paved seating area with a walkway to rear and side aspect.
AGENTS NOTES
Pitch Fee Approx £205 pcm Applies.
Nidderdale Park Rules Apply.
Mains Gas + Electric
Gold Shield Warranty Applies (Expires 07/08/2029)
Age Restrictions Apply on Park- No person under age 50yrs
Viewing
Please contact us on 01765 604343 if you wish to arrange a viewing appointment for this property, or require further information.
Disclaimer
Sherringtons Estate Agents endeavour to maintain accurate depictions of properties in Virtual Tours, Floor Plans and descriptions, however, these are intended only as a guide and purchasers must satisfy themselves by personal inspection.
LOUNGE (3.38m x 2.95m (11'1" x 9'8"))
Double glazed patio doors to raised decked area, double glazed window x two to side aspect, vaulted ceiling, wall mounted electric fire, tv point, double radiator, ceiling coving. Open plan to:
KITCHEN DINING ROOM (3.86m x 3.38m (12'8" x 11'1"))
Range modern wall and base units with work top over, integrated electric oven and four ring gas hob with extractor hood over, sink unit housing stainless steel bowl and drainer with swivel mixer tap, integrated fridge freezer and washing machine, radiator, ceiling coving, vaulted ceiling, inset ceiling spot lights, velux windows x two, double glazed windows x two to side aspect.
HALLWAY
Radiator, ceiling coving.
DOUBLE BEDROOM (2.57m x 3.38m (8'5" x 11'1"))
Double glazed windows x two to side aspect, built in wardrobes, ceiling coving.
BATHROOM (1.68m x 1.91m (5'6" x 6'3"))
Modern white suite comprising: Panelled bath with over head mains shower, vanity unit housing basin and mixer tap, low level W.C., chrome wall mounted towel rail, extractor fan, ceiling coving, double glazed window to side aspect.
EXTERNALLY
DESIGNATED PARKING
Designated parking space.
RAISED DECKING
Elevated wrap around decking to front and side aspects.
ENCLOSED GARDEN
Low maintenance enclosed block paved seating area with a walkway to rear and side aspect.
AGENTS NOTES
Pitch Fee Approx £205 pcm Applies.
Nidderdale Park Rules Apply.
Mains Gas + Electric
Gold Shield Warranty Applies (Expires 07/08/2029)
Age Restrictions Apply on Park- No person under age 50yrs
Viewing
Please contact us on 01765 604343 if you wish to arrange a viewing appointment for this property, or require further information.
Disclaimer
Sherringtons Estate Agents endeavour to maintain accurate depictions of properties in Virtual Tours, Floor Plans and descriptions, however, these are intended only as a guide and purchasers must satisfy themselves by personal inspection.
