- DETACHED 40FT X 20FT TWO BEDROOM PARK HOME
- 9FT RAISED DECKED AREA WITH OPEN RIVERSIDE VIEWS
- ON NIDDERDALE LODGE PARK, KNARESBOROUGH
- OPEN PLAN KITCHEN/DINING/LOUNGE
- MASTER BEDROOM WITH ENSUITE
- MODERN, LIGHT + SPACIOUS PROPERTY
- LAWNED GARDEN LEADING TO WATERS EDGE
- DRIVEWAY PROVIDING OFF STREET PARKING
- DOUBLE GLAZING + GAS CENTRAL HEATING
- PARK RULES + RESTRICTIONS APPLY
Full Description
A delightful detached 40ft x 20ft two bedroom park home which occupying a stunning position with open views and a 9ft raised decked area overlooking the river on Nidderdale Lodge Park within easy reach of Knaresborough High Street. The property benefits from being modern, light and spacious throughout, gas central heating, double glazing, off street parking, lawned and decked garden. Briefly comprises; Front door leading into: Open plan kitchen/dining room/living room, master bedroom with en suite shower room and built in wardrobes. A further double bedroom with built in wardrobes, modern bathroom. Externally; Blocked paved driveway providing off street parking space, lawned garden leading down to waters edge and large raised deck providing open views.
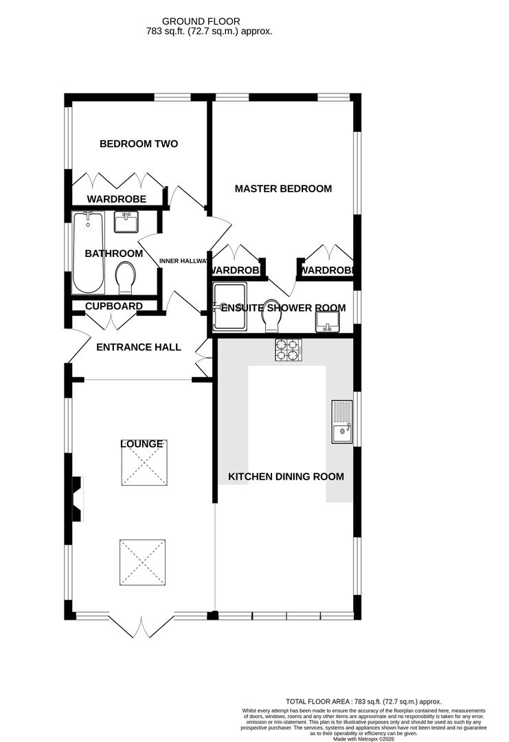
ENTRANCE HALL
Radiator, storage cupboard x three.
LOUNGE (3.20m x 5.21m (10'6" x 17'1"))
Double glazed window to side aspect x two, double radiators x two, laminate wood flooring, ceiling coving, wall mounted electric fire. sky lights x two, double glazed full length x two windows and double glazed patio doors leading to raised decked area with open river views. Open plan to:
KITCHEN (6.20m x 2.51m (20'4" x 8'3"))
Range of modern wall and base units with roll top work surface over, sink unit housing bowl and drainer with swivel mixer tap, integrated four ring gas hob and electric oven with extractor hood over, integrated fridge freezer, integrated washing machine and dishwasher, cupboard housing boiler, double glazed window to side aspect, radiator, laminate wood flooring. Open plan to:
DINING KITCHEN
Feature full length double glazed windows x four to rear aspect with open river views, double glazed window to side aspect, laminate wood flooring, radiator,
INNER HALL (1.04m x 3.05m (3'5" x 10'0"))
Radiator.
BEDROOM ONE (2.77m x 3.99m (9'1" x 13'1"))
Double glazed window to front and side aspect, radiator, built in wardrobes x two.
ENSUITE SHOWER ROOM (1.50m x 2.77m (4'11" x 9'1"))
White suite comprising: Double shower cubicle, vanity unit housing basin and chrome mixer tap, low level W.C., chrome towel rail, extractor fan, double glazed window to side aspect.
BEDROOM TWO (2.79m x 2.44m (9'2" x 8'0"))
Double glazed window to front and side aspect, built in wardrobe, radiator.
BATHROOM (1.55m x 1.98m (5'1" x 6'6"))
White suite comprising: Panelled bath with chrome mixer tap, low level W.C., vanity unit housing basin and chrome mixer tap, chrome towel radiator, extractor fan, ceiling coving, double glazed window to side aspect,
EXTERNALLY
RAISED DECKING + LAWNED GARDEN
9ft raised decked area over looking river, lawned area leading down to waters edge.
DRIVEWAY
Blocked paved driveway providing off street parking space.
AGENTS NOTES
Council Tax Band A.
Pitch Fee Applies. (£ per 90 days)
Park Rules Apply on Nidderdale Park, ie Pet Restrictions + Age Restrictions Apply- No person under the age of 45 years may reside in the park home.
Viewing
Please contact us on 01765 604343 if you wish to arrange a viewing appointment for this property, or require further information.
Disclaimer
Sherringtons Estate Agents endeavour to maintain accurate depictions of properties in Virtual Tours, Floor Plans and descriptions, however, these are intended only as a guide and purchasers must satisfy themselves by personal inspection.
ENTRANCE HALL
Radiator, storage cupboard x three.
LOUNGE (3.20m x 5.21m (10'6" x 17'1"))
Double glazed window to side aspect x two, double radiators x two, laminate wood flooring, ceiling coving, wall mounted electric fire. sky lights x two, double glazed full length x two windows and double glazed patio doors leading to raised decked area with open river views. Open plan to:
KITCHEN (6.20m x 2.51m (20'4" x 8'3"))
Range of modern wall and base units with roll top work surface over, sink unit housing bowl and drainer with swivel mixer tap, integrated four ring gas hob and electric oven with extractor hood over, integrated fridge freezer, integrated washing machine and dishwasher, cupboard housing boiler, double glazed window to side aspect, radiator, laminate wood flooring. Open plan to:
DINING KITCHEN
Feature full length double glazed windows x four to rear aspect with open river views, double glazed window to side aspect, laminate wood flooring, radiator,
INNER HALL (1.04m x 3.05m (3'5" x 10'0"))
Radiator.
BEDROOM ONE (2.77m x 3.99m (9'1" x 13'1"))
Double glazed window to front and side aspect, radiator, built in wardrobes x two.
ENSUITE SHOWER ROOM (1.50m x 2.77m (4'11" x 9'1"))
White suite comprising: Double shower cubicle, vanity unit housing basin and chrome mixer tap, low level W.C., chrome towel rail, extractor fan, double glazed window to side aspect.
BEDROOM TWO (2.79m x 2.44m (9'2" x 8'0"))
Double glazed window to front and side aspect, built in wardrobe, radiator.
BATHROOM (1.55m x 1.98m (5'1" x 6'6"))
White suite comprising: Panelled bath with chrome mixer tap, low level W.C., vanity unit housing basin and chrome mixer tap, chrome towel radiator, extractor fan, ceiling coving, double glazed window to side aspect,
EXTERNALLY
RAISED DECKING + LAWNED GARDEN
9ft raised decked area over looking river, lawned area leading down to waters edge.
DRIVEWAY
Blocked paved driveway providing off street parking space.
AGENTS NOTES
Council Tax Band A.
Pitch Fee Applies. (£ per 90 days)
Park Rules Apply on Nidderdale Park, ie Pet Restrictions + Age Restrictions Apply- No person under the age of 45 years may reside in the park home.
Viewing
Please contact us on 01765 604343 if you wish to arrange a viewing appointment for this property, or require further information.
Disclaimer
Sherringtons Estate Agents endeavour to maintain accurate depictions of properties in Virtual Tours, Floor Plans and descriptions, however, these are intended only as a guide and purchasers must satisfy themselves by personal inspection.
